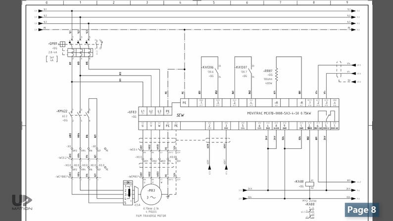
Electrical Panel Wiring Diagram

Electrical panel wiring diagram is a crucial element in any electrical system. It provides a visual representation of how the electrical components are connected and helps electricians troubleshoot issues more efficiently. Understanding how to read and interpret these diagrams is essential for anyone working with electrical systems.

By following the electrical panel wiring diagram, electricians can ensure that all connections are made correctly and in accordance with safety standards. This helps prevent accidents, fires, and other hazards that can result from faulty wiring. It also allows for easier maintenance and upgrades in the future.

Wiring Diagram Of Control Panel Wiring Diagram And SchematicsWiring Diagram Of Control Panel Wiring Diagram And Schematics (www.caretxdigital.com)

When looking at an electrical panel wiring diagram, it is important to pay attention to the symbols and labels used to represent different components. These symbols can vary depending on the type of diagram and the specific equipment being used. It is essential to familiarize yourself with these symbols to understand the diagram fully.

In addition to understanding the symbols, it is crucial to follow the wiring diagram accurately. This means connecting wires as shown in the diagram and following any specific instructions provided. Failure to do so can result in electrical malfunctions, damage to equipment, or even serious injury.

Regularly referring to the electrical panel wiring diagram can also help electricians identify potential issues before they escalate. By comparing the actual wiring to the diagram, they can quickly pinpoint any discrepancies and take corrective action. This proactive approach can save time and money in the long run.

In conclusion, the electrical panel wiring diagram is a valuable tool for anyone working with electrical systems. It provides a clear and concise overview of how components are connected and helps ensure that everything is wired correctly. By understanding and following these diagrams, electricians can maintain a safe and efficient electrical system.


Download and Print Electrical Panel Wiring Diagram Listed below

Electrical Control Panel Wiring Diagram Software Wiring Diagram And Electrical Control Panel Wiring Diagram Software Wiring Diagram And (www.caretxdigital.com)

Main Circuit Panel Wiring Diagram Wiring DiagramMain Circuit Panel Wiring Diagram Wiring Diagram (wiringdiagram.2bitboer.com)

 DIAGRAM Electrical Panel Wiring Diagram Symbols MYDIAGRAM ONLINEDIAGRAM Electrical Panel Wiring Diagram Symbols MYDIAGRAM ONLINE (mydiagram.online)

Electrical Control Panel Wiring Diagram Software IOT Wiring DiagramElectrical Control Panel Wiring Diagram Software IOT Wiring Diagram (www.176iot.com)

Understanding Siemens Electrical Panel Wiring Diagrams A Comprehensive Understanding Siemens Electrical Panel Wiring Diagrams A Comprehensive (design1systems.com)

Electrical Panel Wiring Diagram

To sum up, comprehending and working with Electrical Panel Wiring Diagram is an vital skill for anyone involved in electrical work, from novices to seasoned professionals. These diagrams act as blueprints that illustrate the layouts and roles of electrical circuits, making troubleshooting, setup, and maintenance far more manageable.

When you’re working on a basic home lighting system or a complex industrial setup, a well-drawn Electrical Panel Wiring Diagram can help avoid delays, reduce mistakes, and ensure safety.

If you’re new to Electrical Panel Wiring Diagram, start small, study real-life examples, and don’t hesitate to seek guidance. For skilled workers, staying updated with the current practices helps you stay competitive.

In the end, Electrical Panel Wiring Diagram are more than just schematic drawings; they are the foundation of electricity. By mastering and create them, you equip yourself to work more effectively, more safely, and with precision in any electrical project.

Thank you for reading, and we hope this article Electrical Panel Wiring Diagram has given insight into the importance of wiring diagrams.